Senior Capstone Project

I am a sustainable design minor and I wanted to put that to use in a real world design scenario for my capstone project. I also have an interest in old buildings and historic restoration. I decided to base my design problem around those two interests and decided to research “How Energy Impacts How We Design A Space”. By choosing this I really wanted to explore all of the different ways a historical commercial building could be adapted into a sustainable, energy efficient building. I decided to retrofit a historical hotel with new modern eco-friendly features that were paired with natural materials to help convey a truly sustainable design.

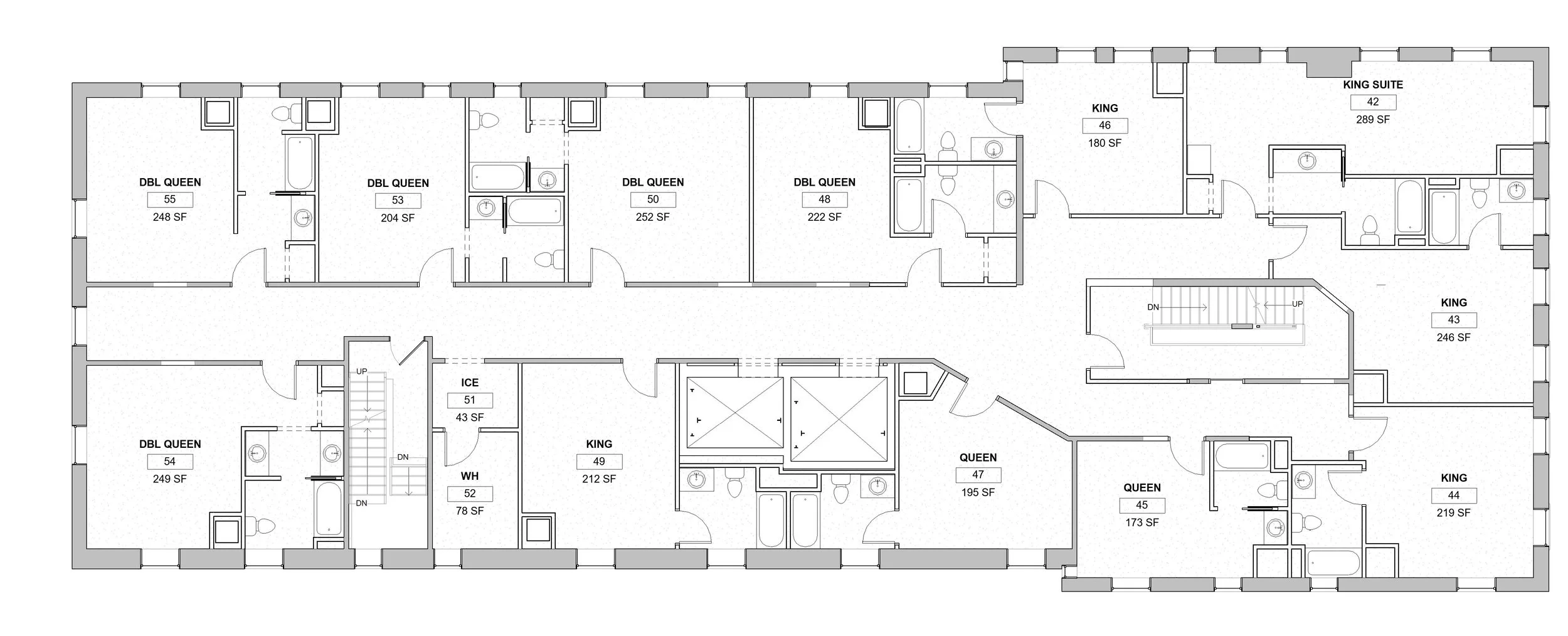
Guest Room Perspectives / Materials

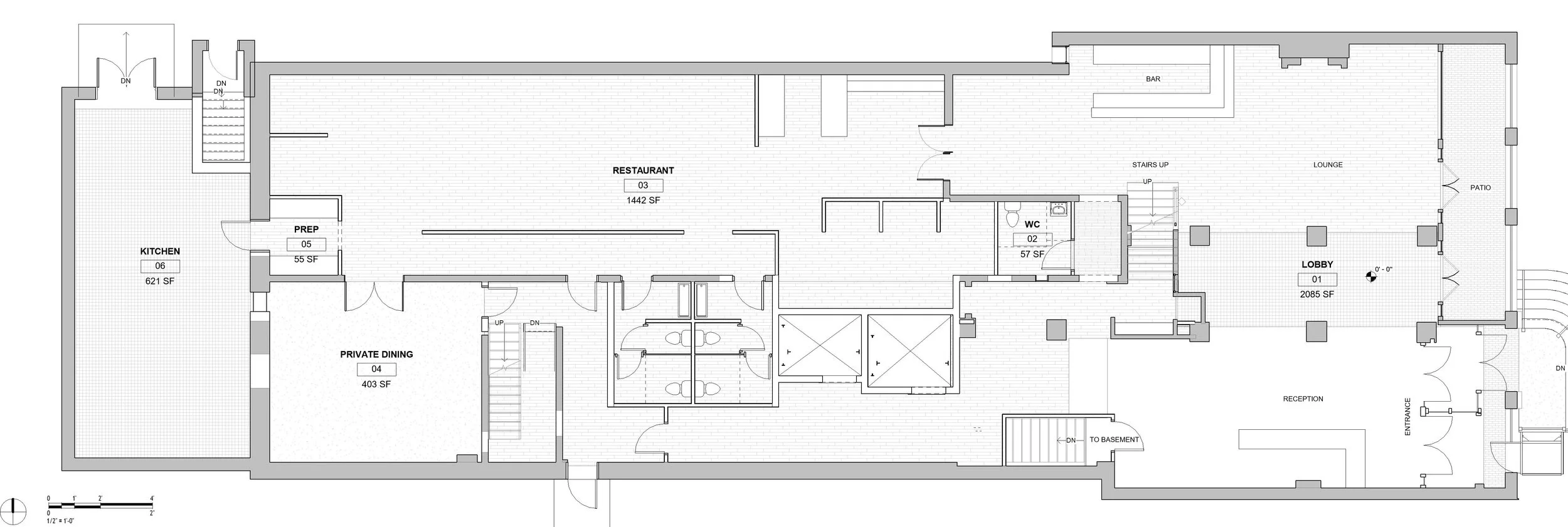
Lobby Perspective / Materials

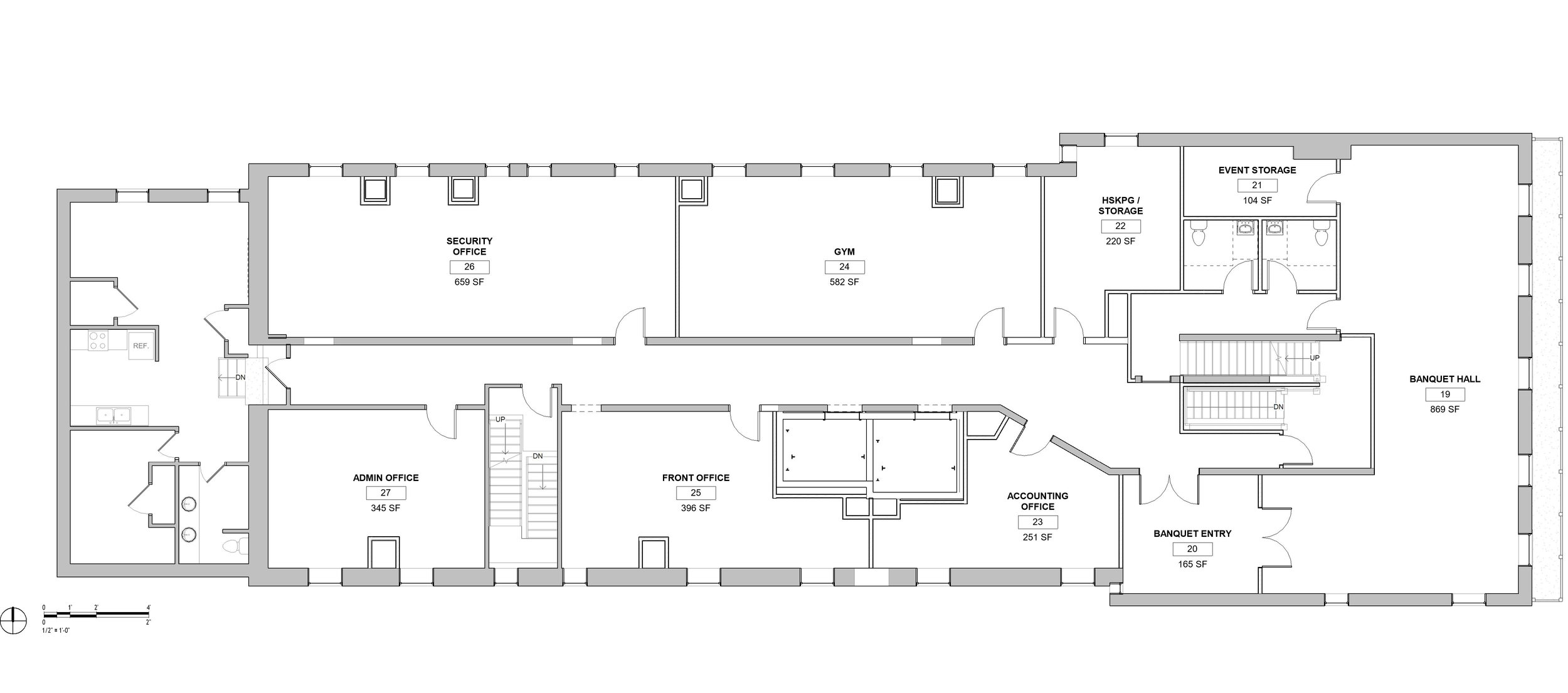
Banquet Hall Perspective / Materials

Unique Spaces / Innovation

This space in the lobby is inspired by our class trip to Kimball International and their “slice” room. The style of room offers users privacy and comfort. Acoustic ceiling tiles are clad to the ceiling above to block out outside noise for any users that have tasks that need done. The glass walls give users a view of the rest of the space so they can still feel a part of the inclusive community.

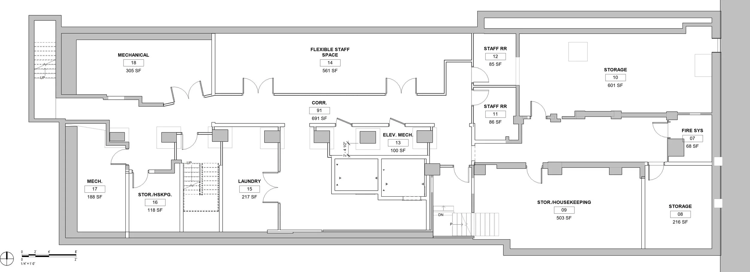
Using high efficiency toilets (HET) that flush at 1.28 gallons per flush instead of the baseline 1.6 gallons per flush is one of the innovative ways this hotel saves water usage. WaterSense faucets are also used in all of the bathrooms that flow at 1.5 gallons per minute instead of the baseline 2.2 gallons per minute

Columns clad in charred western red cedar planks with multi colored green acoustical ceiling clouds are meant to resemble trees in a forest. This is a very visual reminder to the user of the concept that the hotel is trying to convey. The thought behind the ceiling tiles is to add an extra layer of privacy to guests who might be sharing sensitive information at reception. The ceilings tiles will help to absorb the sound so it doesn’t travel into the rest of the lobby space.

After extensively researching this topic I came to the conclusion that the best way to approach this design would be to use a whole building design approach and look at how all of the different systems can collectively work together to boost user well being in each separate space.

Previous
Previous

AI Design Concept